Beschrijving

Ideale start op de woningmarkt

Ben jij op zoek naar je eigen appartement op een fijne en centrale plek? Dan is dit goed onderhouden 2-kamerappartement in de groene wijk Seghwaert zeker het bekijken waard. Hier woon je rustig, maar met alle voorzieningen om de hoek: winkels, Randstad Rail en uitvalswegen zijn binnen handbereik.

Het appartement ligt in een kleinschalig complex en is praktisch ingedeeld. De lichte woonkamer vormt het hart van de woning en staat in open verbinding met de moderne keuken. Dankzij het zonnige balkon en de ruime slaapkamer voelt het appartement groter aan dan je verwacht.

BEGANE GROND
Afgesloten entree met bellentableau, trappenhuis en toegang tot de eigen fietsenberging in de onderbouw.

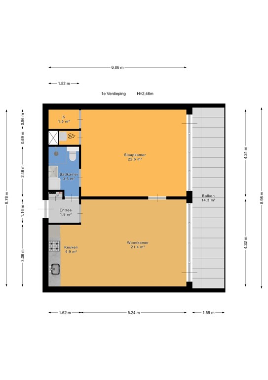
1E VERDIEPING
Entree, hal met meterkast en toegang tot de woonkamer. De woonkamer is licht en biedt direct toegang tot het balkon over de volle breedte van de woning: een fijne plek om na werk of in het weekend buiten te zitten. De open keuken is in 2021 vernieuwd en voorzien van onder andere een inductiekookplaat, combi oven-magnetron, vaatwasser, koel-vriescombinatie. Genoeg plaats voor een eetkamer tafel om gezellig te eten met vrienden en/of familie. Vanuit de woonkamer toegang tot de zeer ruime slaapkamer en eveneens toegang tot het balkon. De badkamer is netjes afgewerkt en beschikt over een douchehoek en wastafelmeubel en opstelplaats voor wasmachine en droger. Daarnaast is er een aparte kast voor de cv-ketel en met extra bergruimte. Het zonnige balkon van ongeveer 14 m² ligt op het zuiden en is bereikbaar vanuit zowel de woonkamer als de slaapkamer.

WONEN IN SEGHWAERT
Je woont hier op loopafstand van winkelcentrum Leidsewallen, Randstad Rail, een gezondheidscentrum en diverse andere voorzieningen. Ook recreatiegebied Noord Aa en scholen liggen dichtbij. Een ideale plek voor starters die alles in de buurt willen hebben.

Pluspunten op een rij:
-	Perfect als eerste koopwoning
-	Energielabel C
-	 Moderne keuken (2021)
-	Woonoppervlakte ca. 60 m²
-	Zonnig balkon op het zuiden
-	 Gehele appartement voorzien van laminaatvloer
-	Eigen fietsenberging
-	Actieve VvE, maandelijkse bijdrage € 118,30
-	Oplevering in overleg

Nieuwsgierig geworden?
Maak snel een afspraak voor een bezichtiging en ontdek of dit jouw nieuwe thuis wordt!

Kenmerken