Beschrijving
** English text below **
In de geliefde en karakteristieke wijk Hof van Delft staat deze charmante tussenwoning met een woonoppervlak van maar liefst 140 m² en een perceel van 131 m².
De woning combineert prachtige originele details met het comfort van nu: zowel de keuken als de badkamer zijn recent vernieuwd. Met vier volwaardige slaapkamers, een lichte uitbouw aan de achterzijde en een zonnige tuin is dit een ideaal familiehuis op een fantastische locatie.
WONEN EN KOKEN
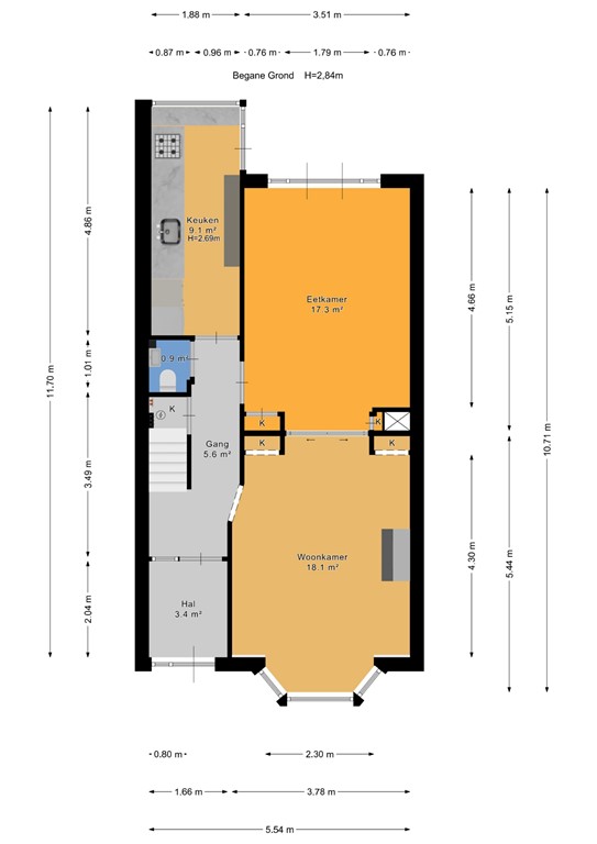
De sfeervolle woonkamer straalt karakter uit dankzij de authentieke elementen die netjes bewaard zijn gebleven. Door de verdeling van woonkamer en eetkamer is er een royale leefruimte ontstaan met volop licht. Deze ruimtes vormen het hart van de woning, perfect voor gezellige avonden en ontspannen wooncomfort.
De moderne keuken bevindt zich in de uitbouw aan de achterzijde en is recent volledig vernieuwd. Dankzij de strakke afwerking, hoogwaardige inbouwapparatuur en praktische indeling is dit een prachtige plek voor iedereen die van koken houdt. De directe verbinding met de tuin maakt de keuken bovendien heerlijk licht en functioneel.
SLAPEN EN BADEN
Op de eerste en tweede verdieping bevinden zich vier ruime slaapkamers. Deze fijne kamers zijn ideaal als master bedroom, kinderkamers, logeerkamer of als thuiswerkplek. De indeling biedt veel flexibiliteit en maakt de woning geschikt voor zowel gezinnen als stellen die ruimte wensen. De badkamer is modern uitgevoerd en voorzien van eigentijdse materialen en comfort. Denk aan een ruime inloopdouche, stijlvol wastafelmeubel en een frisse, moderne afwerking.
BUITENLEVEN
De achtertuin biedt volop privacy en voldoende ruimte voor een loungehoek, eettafel of speelplek. Een fijne buitenruimte om te genieten van zonnige dagen of lange avonden.
OMGEVING
Hof van Delft is een van de meest geliefde woonwijken van de stad. Je woont hier
op korte afstand van het historische centrum van Delft nabij scholen, sportvoorzieningen en buurtwinkels in een rustige, groene straat met goede parkeergelegenheid dichtbij openbaar vervoer en uitvalswegen (A4, A13).
BIJZONDERHEDEN
- Vernieuwde keuken met Bora kookplaat, Quooker en wijnkast (2021);
- Vernieuwde badkamer met inloopdouche en wastafelmeubel (2021);
- 4 slaapkamers;
- 6 zonnepanelen in eigendom;
- Energielabel C;
- Dak vernieuwd en extra geïsoleerd (2021);
- Kruipruimte geïsoleerd;
- CV-ketel uit 2024 (huur);
- Massief eikenhouten vloer;
Meer weten over deze woning in Delft? Bel of mail ons gerust voor meer informatie of voor het maken van een bezichtigingsafspraak.
Deze informatie is door ons met de nodige zorgvuldigheid samengesteld. Onzerzijds wordt echter geen enkele aansprakelijkheid aanvaard voor enige onvolledigheid, onjuistheid of anderszins, dan wel de gevolgen daarvan. Alle opgegeven maten en oppervlakten op de plattegronden zijn indicatief.
________________________________________________
The beloved and characteristic neighborhood Hof van Delft is where this charming terraced house, which has a whopping 140m2 living area and 131m2 plot, can be located.
The house combines beautiful original details with the modern comfort: both the kitchen and the bathroom have recently been renewed. Four full-sized bedrooms, a light-blue extension at the back of the house, and a sunny backyard make this the ideal family house in a fantastic location.
LIVING AND COOKING
The lovely living room exudes character thanks to the neatly kept authentic elements. The layout of the living room and dining room make for a spacious living area with lots of light. These spaces form the heart of the house, perfect for the cozy evenings and relaxed living comfort.
The modern kitchen, which has been recently renewed, is in the extension at the back of the house. The neat finish, high-quality appliances, and practical layout make this an amazing place for everyone who likes to cook. Moreover, the direct connection to the backyard makes the kitchen beautifully light, and also functional.
SLEEPING AND BATHING
On the first and second floors are the four large bedrooms. These nice rooms are ideal as master bedroom, child rooms, guest rooms, or as home office. The layout offers lots of flexibility and makes the house suitable for both families and couples who like space. The modern bathroom is fitted with contemporary materials and comfort. Think of a large walk-in shower, stylish washbasin with cabinets, and a fresh modern finish.
OUTSIDE LIVING
The backyard offers lots of privacy and enough space for a lounge corner, dining table or play place. A nice outside space to enjoy the sunny days or long evenings.
SURROUNDINGS
Hof van Delft is one of the most beloved neighborhoods in the city. You live close to the historical center of Delft, near schools, sports facilities, and small businesses in a tranquil, green street with good parking, close to public transport, and feeder roads to highways (A4, A13).
PARTICULARITIES
- Renewed kitchen with Bora induction cooktop, Quooker, and wine cabinet (2021);
- Renewed bathroom with walk-in shower and washbasin with cabinets (2021);
- 4 bedrooms;
- 6 solar panels (private ownership);
- Energy label C;
- Roof renewed and extra insulation added (2021);
- Crawl space insulated;
- Boiler from 2024 (Rented);
- Solid oak wood flooring.
Want to know more about this house in Delft? Feel free to call or email us for more information or to schedule a viewing appointment.
This information has been carefully compiled. However, we accept no liability for any incompleteness, inaccuracy or otherwise, nor the consequences thereof. All measures and areas are indicative.
Plattegronden
179626318_hof_van_delftla_begane_grond_first_design_20251121_6bbae3.jpg
179626318_hof_van_delftla_1e_verdieping_first_design_20251121_e1ea8f.jpg
179626318_hof_van_delftla_2e_verdieping_first_design_20251121_f8a4b3.jpg
179626318_hof_van_delftla_berging_first_design_20251121_24c6b9.jpg
179626318_hof_van_delftla_perceeloverzich_first_design_20251121_46e948.jpg